9240 Summer Song LaneSylvania, OH 43560


Mortgage Calculator
Monthly Payment (Est.)
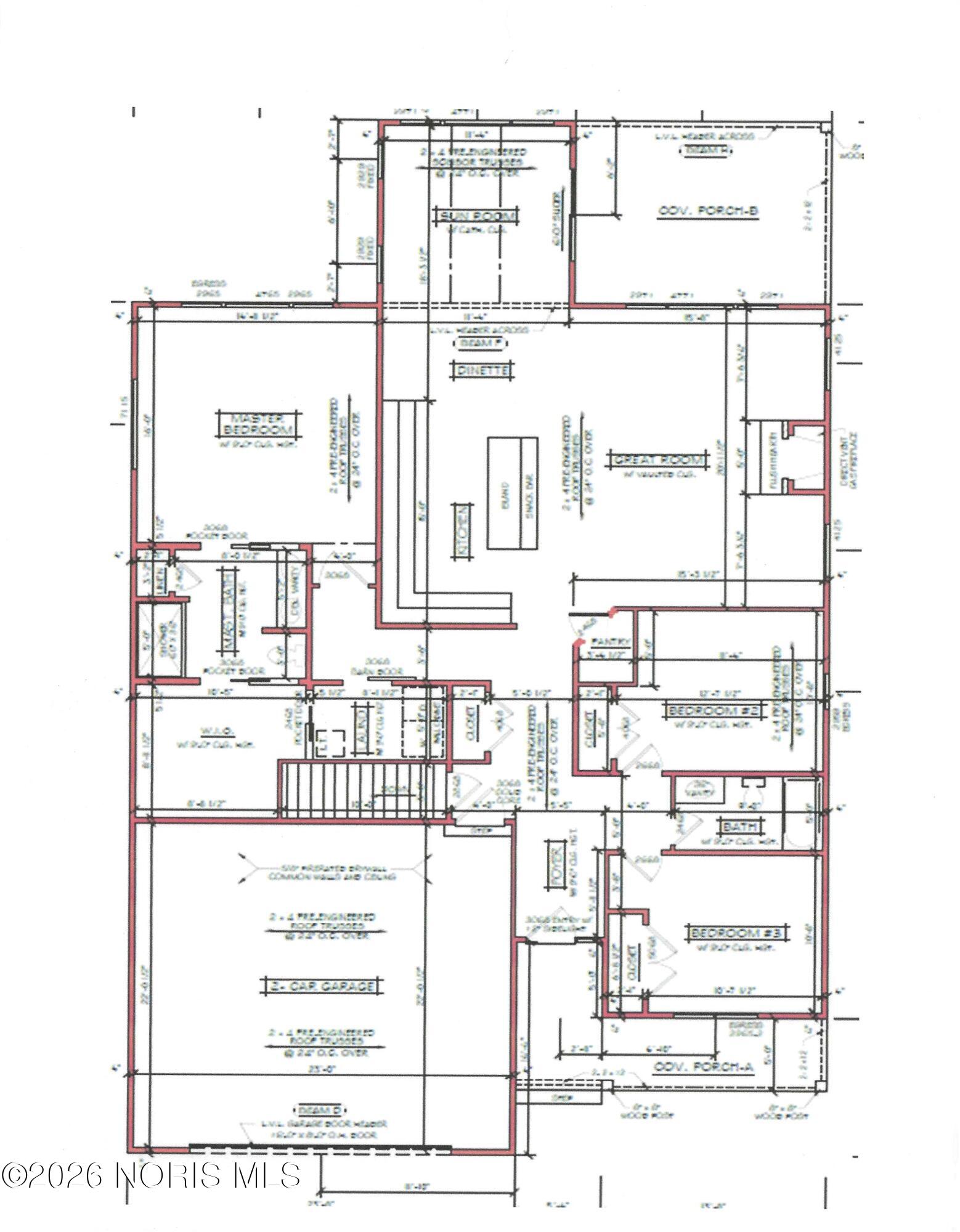
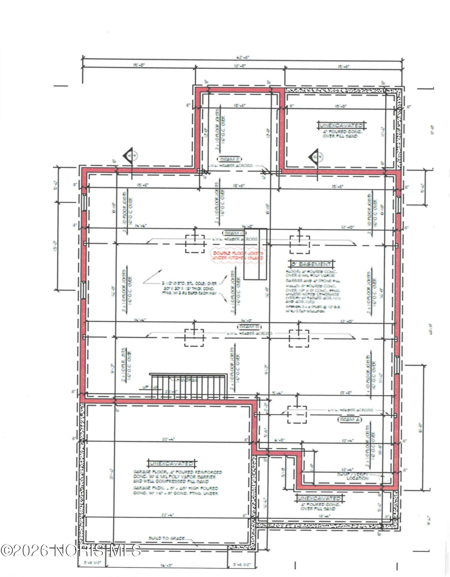
$2,408New construction home by Woodland Custom Home Builders! Here's your chance to live in one of the last subdivisions with water lots available! This 1850 sq ft 3 bed, 2 bath, 2 car garage will feature quartz countertops throughout, ss appliances with a subway tile backsplash and soft close cabinets. Black finishes throughout! Primary bath has tiled shower, dual vanity with a walk in closet that connects to the laundry. 9ft walls on first floor/8ft in basement. Gas fireplace will have floor to ceiling stone with a wood box mantle. Enjoy a beverage in the sunroom overlooking the pond. Basement is studded & insulated. Covered cement porch in back. Irrigation system & landscaping included. Land taxes not available at time of listing.
| 2 days ago | Status changed to Coming Soon | |
| 2 days ago | Listing updated with changes from the MLS® | |
| 6 days ago | Listing first seen on site |
Listing information is provided by Participants of the NORIS MLS. IDX information is provided exclusively for personal, non-commercial use, and may not be used for any purpose other than to identify prospective properties consumers may be interested in purchasing. Information is deemed reliable but not guaranteed. Copyright 2026, NORIS MLS.
Last checked: 2026-02-02 02:45 AM UTC

Did you know? You can invite friends and family to your search. They can join your search, rate and discuss listings with you.