416 Hudson StreetNapoleon, OH 43545

Mortgage Calculator
Monthly Payment (Est.)
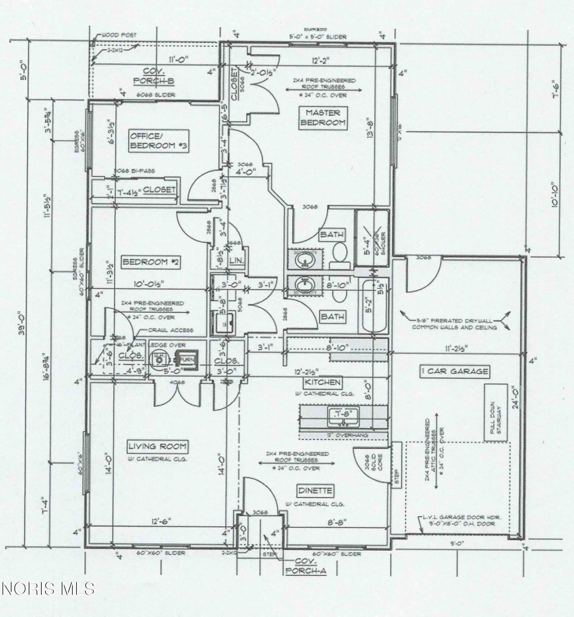
$1,140New construction by Woodland Custom Home Builders! This updated twist of the Oakridge is 1103 sq ft open floor ranch on a crawl, 3 bed, 2 bath, 1 car garage! This home will feature granite countertops in the kitchen, tile backsplash, white cabinets and ss appliances! Cathedral ceilings in the living/kitchen/dinning area! Primary bedroom has attached bath with a large walk in shower! 3rd bed/office in back will have a slider with access to a covered porch. Large slider windows throughout the house along with transoms for tons of natural light. 12'x17' cement patio out back through the man door in garage. Sump pump in conditioned crawl. Taxes are on land only.
| 4 weeks ago | Listing first seen on site | |
| 4 weeks ago | Listing updated with changes from the MLS® |
Listing information is provided by Participants of the NORIS MLS. IDX information is provided exclusively for personal, non-commercial use, and may not be used for any purpose other than to identify prospective properties consumers may be interested in purchasing. Information is deemed reliable but not guaranteed. Copyright 2026, NORIS MLS.
Last checked: 2026-04-30 05:56 AM UTC

Did you know? You can invite friends and family to your search. They can join your search, rate and discuss listings with you.