208 Dodge StreetSwanton, OH 43558




Mortgage Calculator
Monthly Payment (Est.)
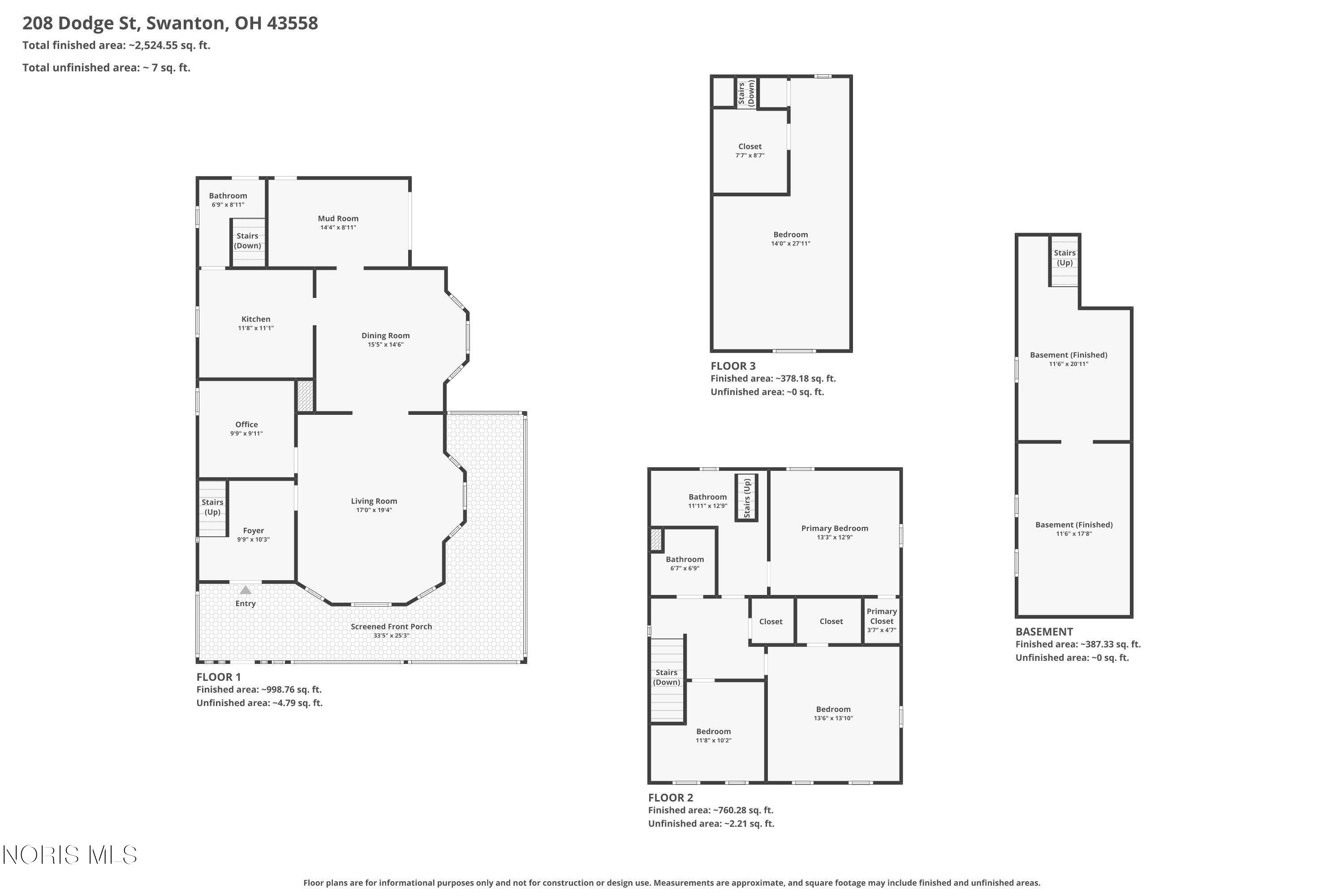
$1,168Welcome to this spacious 2-story Swanton home with bonus 3rd level loft bedroom! High ceilings, original oak trim, transition columns between the living and dining rooms, and period door hardware give the feeling of an established, well-loved home. Updates root it in the present: remodeled kitchen with stainless steel dishwasher and microwave, newer flooring and paint, plus partially finished & waterproofed basement, newer roof & windows, and new driveway. There's extra seasonal living space in the huge wrap-around enclosed front porch and the inviting patio with adjacent fire pit. The mudroom at the back is transformed into a modern, flexible-use space: think office, playroom, or a generous back entrance. The finished attic with walk-in closet is a perfect bedroom for kids. Only 2 miles from Oak Openings Metropark. Close enough to town for groceries, restaurants and shopping, yet far enough away for more quiet living, this excellent corner lot is a great place to call home. Includes a 1-year home warranty. Set your showing appointment asap, don't miss out!
| 11 hours ago | Listing updated with changes from the MLS® | |
| 11 hours ago | Status changed to Active | |
| 2 weeks ago | Listing first seen on site |
Listing information is provided by Participants of the NORIS MLS. IDX information is provided exclusively for personal, non-commercial use, and may not be used for any purpose other than to identify prospective properties consumers may be interested in purchasing. Information is deemed reliable but not guaranteed. Copyright 2026, NORIS MLS.
Last checked: 2026-04-30 05:08 AM UTC

Did you know? You can invite friends and family to your search. They can join your search, rate and discuss listings with you.